Tauchen Sie ein in ein neues Gefühl von Freiheit und Raum. Das Ferienhaus Portland vereint avantgardistisches Design mit der warmen, natürlichen Atmosphäre von Massivholz. Mit seinem ungewöhnlichen, geteilten Pultdach und den loftartigen Fenstern setzt dieses Haus architektonische Akzente und schafft einen einzigartigen, lichtdurchfluteten Lebensraum.
Ein Haus, das Ihre Vorstellungskraft beflügelt
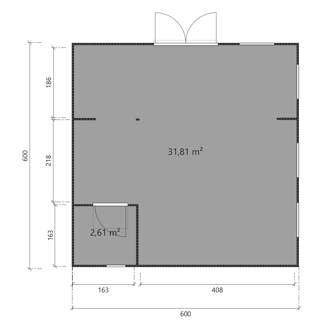
Die optische Täuschung, das Haus bestehe aus zwei separaten Teilen, verleiht dem Portland einen besonderen Charakter. Dieses Design ist nicht nur ein Hingucker, sondern auch extrem vielseitig. Der großzügige, fast trennwandfreie Hauptbereich (über 32 m² Wohnfläche) bietet Ihnen maximale Gestaltungsfreiheit. Ob als kreatives Büro mit Lounge-Ecke, als offenes Gästehaus oder mit individuell unterteilten Schlafbereichen – dieses Ferienhaus passt sich Ihren Bedürfnissen an.
Hochwertige Ausstattung für Komfort und Langlebigkeit
Das Portland wird in traditioneller Handwerkskunst aus hochwertigem, nordischem Fichtenholz gefertigt. Jedes Detail ist auf Qualität ausgelegt:
- Superior Fenster & Türen: Die großzügigen Doppelverglasungen (4/10/4 mm) mit Argon-Gasfüllung sorgen für ausgezeichnete Wärmedämmung und eine ruhige, komfortable Atmosphäre. Die verstellbaren Scharniere der Türen gewährleisten eine perfekte Passform über viele Jahre.
- Stabile Konstruktion: Mit einer Wandstärke von 44 mm, 19 mm starken Dach- und Fußbodenbrettern sowie massiven 70 x 190 mm Dachbalken steht Ihr Ferienhaus für Stabilität und Langlebigkeit.
- Lichtdurchflutete Atmosphäre: Die hohe Firsthöhe von 3.900 mm und die zahlreichen Fenster, inklusive der besonderen Oberlichter, fluten den Wohnbereich mit natürlichem Tageslicht.
- Technische Daten auf einen Blick:
- Grundfläche: 5.996 x 5.996 mm
- Wandhöhe: 2.295 mm
- Firsthöhe: 3.900 mm (bei 12/20° Dachneigung)
- Wohnfläche: ca. 32 m²
- Dachfläche: 42,3 m²
- Wandstärke: 44 mm
- Dach- & Fußbodenbretter: 19 mm
- Fenster: 10x Superior Doppelverglasung (u.a. 5x 800×1935 mm, 1x 1600×1975 mm)
- Türen: 1x Superior Haustür (900×1975 mm), 1x Innentür
Ihr individuelles Traumhaus
Das Holzgartenhaus „Portland“ ist nicht nur ein Produkt, sondern ein Projekt, das wir gemeinsam mit Ihnen verwirklichen können. Wie alle unsere Häuser kann es an Ihre individuellen Vorstellungen angepasst werden.
Kontaktieren Sie uns noch heute und lassen Sie uns Ihre Ideen für Ihr persönliches Ferienhaus Portland besprechen!
Das könnte dir gefallen
-

Ferienhaus Kongsberg 960 x 660
30.900,00 €In den WarenkorbEstimated delivery dates: März 23, 2026 - März 28, 2026 -

Ferienhaus Sandwald 630 x 380
14.499,00 €Optionen auswählenEstimated delivery dates: März 23, 2026 - März 28, 2026 -

Ferienhaus Arvika 994 x 784
71.000,00 €Optionen auswählenEstimated delivery dates: März 23, 2026 - März 28, 2026
Lieferzeit
Keine Angabe
Bewertungen
Ferienhaus Portland 600 x 600
12.490,00 €
Preis inkl. MwSt.* zzgl. Versandkosten






