Das Ferienhaus Reisbach vereint nordische Gemütlichkeit mit moderner Funktionalität und bietet Familien ein stilvolles Zuhause, das durch Langlebigkeit, Energieeffizienz und individuelle Gestaltungsfreiheit überzeugt. Mit einer Wandstärke von 94 mm und einer durchdachten Bauweise schafft dieses Holzhaus ein behagliches Raumklima – ideal für ganzjähriges Wohnen oder als urlaubstaugliches Refugium in idyllischer Natur. Dank flexibler Erweiterungsmöglichkeiten wie Anbau, Veranda oder Carport wird Ihr Traumhaus genau nach Ihren Vorstellungen realisiert.
Robuste Konstruktion und optimale Raumaufteilung
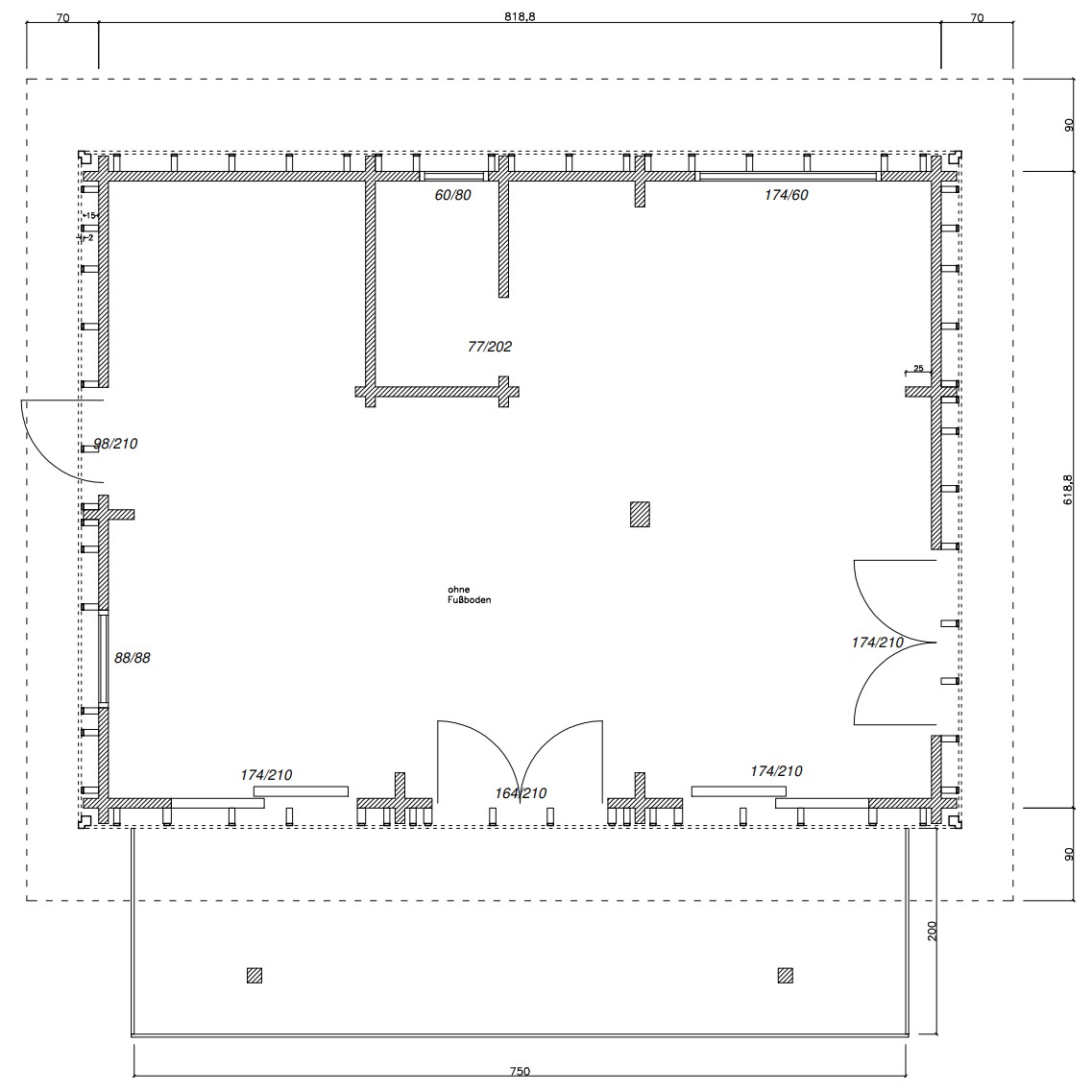
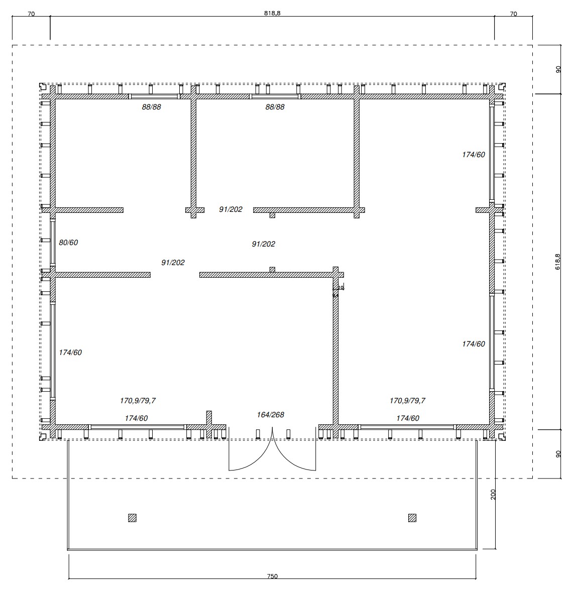
Das Ferienhaus Reisbach besticht durch seine stabile Holzbauweise mit einem umbauten Raum von 250 m³ und einer großzügigen Wandfläche von 185 m², die viel Platz für individuelle Raumgestaltung bietet. Das klassische Satteldach mit einer Neigung von 25° und einer Dachfläche von 85 m² sorgt für optimalen Wetterschutz, während die gleichmäßigen Dachüberstände (vorne/hinten 90 cm, seitlich 70 cm) für eine harmonische Optik und zusätzlichen Regenschutz sorgen.
Helle, einladende Räume mit hochwertigen Fenstern und Türen
Dank der Seitenwandhöhe von 4,05 m und einer Firsthöhe von 6,40 m wirken die Innenräume besonders lichtdurchflutet und geräumig. Das Ferienhaus Reisbach verfügt über eine moderne Fenster- und Türkombination.
Diese großzügige Verglasung ermöglicht maximale Helligkeit und einen ungestörten Blick in die Natur – perfekt für alle, die das Gefühl von Freiheit und Weite auch im Wohnbereich genießen möchten.
Flexible Nutzung – vom Ferienhaus bis zum ganzjährigen Wohnsitz
Ob als Wochenendhaus, Gästehaus oder dauerhafter Wohnsitz – das Ferienhaus Reisbach passt sich Ihren Bedürfnissen an. Die großzügigen Außenmaße bieten eine optimale Grundfläche für verschiedene Nutzungskonzepte. Durch optionalen Anbau einer Sauna, einer überdachten Terrasse oder eines Carports lässt sich das Haus perfekt erweitern.
Nachhaltig und energieeffizient – ein Holzhaus für die Zukunft
Dank hochwertiger Materialien und einer wärmedämmenden Wandkonstruktion ist das Ferienhaus Reisbach nicht nur äußerst langlebig, sondern auch energiesparend. Die massive Holzbauweise speichert Wärme im Winter und hält die Räume im Sommer angenehm kühl – ideal für ganzjährigen Komfort bei niedrigen Heizkosten.
Ihr individuelles Traumhaus – geplant nach Ihren Wünschen
Wir realisieren das Ferienhaus Reisbach maßgeschneidert nach Ihren Vorstellungen – von der Grundrissgestaltung bis zur Wahl der Innenausstattung. Ob rustikale Blockhaus-Optik oder moderner Skandinavien-Stil mit glatten Holzfassaden: Mit unserem flexiblen Baukonzept setzen wir Ihre Ideen um.
Technische Daten im Überblick:
- Dachform: Satteldach
- Wandstärke: 94 mm
- Außenmaße (B/T): 8,185/2,00 x 6,188/7,50 m
- Seitenwandhöhe: 4,05 m
- Firsthöhe: 6,40 m
- Umbauter Raum: 250 m³
- Wandfläche: 185 m²
- Dachfläche: 85 m²
- Dachneigung: 25°
- Dachüberstand: vorne/hinten 90 cm, seitlich 70 cm
Schaffen Sie bleibende Erinnerungen – mit dem Ferienhaus Reisbach
Ein Holzhaus ist mehr als nur ein Gebäude – es ist ein Ort, an dem Familienmomente, Lachen und gemeinsame Zeit gelebt werden. Mit dem Ferienhaus Reisbach investieren Sie in ein Zuhause, das Generationen überdauert und stets ein Gefühl von Geborgenheit vermittelt.
Kontaktieren Sie uns jetzt und gestalten Sie Ihr persönliches Traumhaus!
Das könnte dir gefallen
-

Freizeithaus Weekend 350 x 600
17.490,00 €Optionen auswählenEstimated delivery dates: März 21, 2026 - März 26, 2026 -

Freizeithaus Raphael 800 x 800
63.900,00 €Optionen auswählenEstimated delivery dates: März 21, 2026 - März 26, 2026 -

Ferienhaus Odenwald 760 x 710
34.900,00 €Optionen auswählenEstimated delivery dates: März 21, 2026 - März 26, 2026
Lieferzeit
Keine Angabe
Bewertungen
Ferienhaus Reisbach 818 x 619
92.000,00 €
Preis inkl. MwSt.* zzgl. Versandkosten














