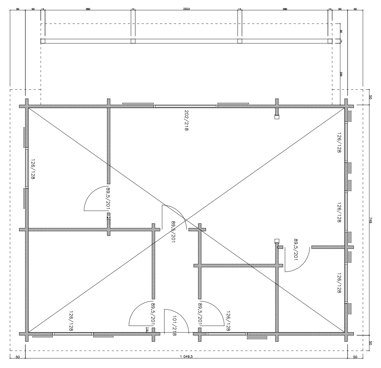
Das Ferienhaus Sauerland vereint rustikalen Charme mit modernem Wohnkomfort und schafft einen einzigartigen Rückzugsort für Naturliebhaber und Erholungssuchende. Mit seinen Außenmaßen von 7,49 x 10,495 m bietet dieses Holzhaus ausreichend Platz für entspannte Stunden inmitten unberührter Landschaft. Die massive Wandstärke von 94 mm und die Verwendung umweltfreundlicher Materialien garantieren nicht nur Langlebigkeit, sondern auch ein gesundes Raumklima – perfekt für alle, die Wert auf Nachhaltigkeit und natürliche Behaglichkeit legen.
Architektonische Besonderheiten mit traditionellem Charakter
Das Ferienhaus Sauerland besticht durch seine harmonischen Proportionen:
- Klassisches Satteldach mit einem umlaufenden Dachüberstand von 50 cm, das Schutz vor Witterung bietet
- Seitenwandhöhe von 2,50 m und Firsthöhe von 4,65 m für ein ausgewogenes Raumgefühl
- 6 großzügige Doppelfenster (DF 126 x 128 cm), die natürliches Licht einlassen
Ein Haus für besondere Momente
Das Ferienhaus Sauerland ist mehr als nur ein Gebäude – es ist ein Ort der Begegnung und Entspannung:
- Ideal als Ferienhaus oder Gästehaus
- Energieeffiziente Bauweise für geringe Betriebskosten und hohen Wohnkomfort
- Schnelle Aufbauzeit bei gleichbleibend hoher Qualität
Technische Daten auf einen Blick:
- Dachform: Satteldach
- Wandstärke: 94 mm
- Außenmaße: 749 x 1049,5 cm
- Raumhöhen: Seitenwand 250 cm, First 465 cm
- Fenster: 6 x DF 126 x 128 cm
- Türen: 7 verschiedene Formate
- Dachüberstand: 50 cm umlaufend
Ihr persönliches Naturparadies
Ob als Jahreszeiten-Refugium, Gästehaus oder privater Rückzugsort – das Ferienhaus Sauerland verwandelt sich durch Ihre individuellen Vorstellungen in einen ganz besonderen Ort. Die natürlichen Materialien altern würdevoll und entwickeln mit den Jahren einen einzigartigen Patina-Charme.
Lassen Sie sich von unseren Experten beraten und gestalten Sie Ihr persönliches Ferienhaus Sauerland! Mit unserer langjährigen Erfahrung in Holzbauweise begleiten wir Sie von der ersten Skizze bis zur Schlüsselübergabe – für ein Zuhause, das genau zu Ihnen passt.
Das könnte dir gefallen
-

Ferienhaus Grimstad 780 x 580
37.900,00 €Optionen auswählenEstimated delivery dates: März 21, 2026 - März 26, 2026 -

Freizeithaus Raphael 800 x 800
63.900,00 €Optionen auswählenEstimated delivery dates: März 21, 2026 - März 26, 2026 -

Ferienhaus Reisbach 818 x 619
92.000,00 €Optionen auswählenEstimated delivery dates: März 21, 2026 - März 26, 2026
Lieferzeit
Keine Angabe
Bewertungen
Ferienhaus Sauerland 749 x 1049
71.000,00 €
Preis inkl. MwSt.* zzgl. Versandkosten






