Suchen Sie mehr als nur ein Haus? Suchen Sie einen Ort, an dem Lachen von den Wänden widerhallt, an dem Gemütlichkeit gelebt und der zum sicheren Hafen für Generationen wird? Dann entdecken Sie das Freizeithaus Leonardo – die perfekte Symbiose aus rustikalem Charme, modernem Komfort und unvergleichlicher Handwerkskunst. Unser Leonardo wurde entwickelt, um zu beeindrucken, zu behagen und lebenslange Erinnerungen zu schaffen. Als geräumiges und langlebiges Holzhaus ist er die ideale Wahl für Familien, die nach einem Zuhause auf Zeit oder einem dauerhaften Refugium suchen, das Beständigkeit und Wohlgefühl vereint.
Ein Zuhause, das mitwächst: Raum für Leben und Träume
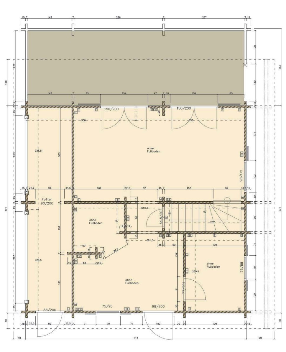
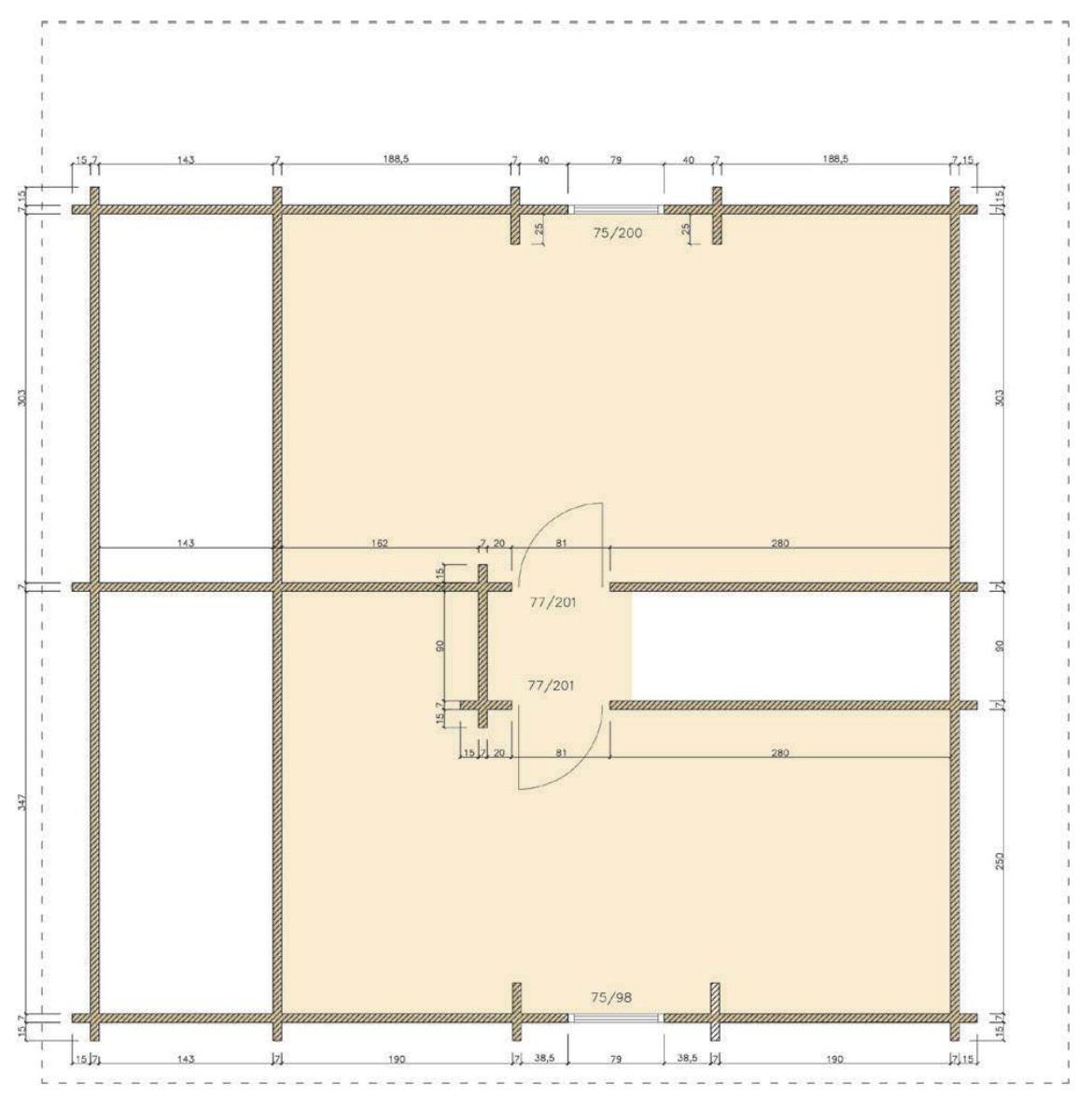
Mit einer großzügigen Wohnfläche von 124 m² bietet das Leonardo genug Platz, um sich komplett entfalten zu können. Auf dieser Fläche entstehen helle, einladende Wohnbereiche, gemütliche Schlafzimmer und ausreichend Raum für persönliche Rückzugsmomente. Die intelligente Grundrissgestaltung, die wir gemeinsam mit Ihnen nach Ihren individuellen Wünschen planen, macht dieses Haus unglaublich flexibel. Ob Sie ein offenes Wohn-Koch-Esszimmer für gesellige Abende wünschen, einen separaten Arbeitsbereich oder ein Gästezimmer für Besucher – der Leonardo bietet die perfekte Leinwand für Ihre Vorstellungen.
Die Seele des Hauses: Hochwertige Materialien und handwerkliche Perfektion
Das Herzstück des Leonardo schlägt in seiner Bauweise. Als Blockhaus mit einer massiven Wandstärke von 70 mm steht es für Stabilität, eine hervorragende Wärmedämmung und das authentische Gefühl, das nur echtes Holz vermitteln kann. Diese massive Konstruktion sorgt im Sommer für ein angenehm kühles Raumklima und speichert im Winter die Wärme effizient, was zu einer spürbaren Reduzierung der Heizkosten führt – ein echter Vorteil unserer energieeffizienten Bauweise. Jeder Balken erzählt eine Geschichte von handwerklicher Präzision und der Verwendung von hochwertigsten, naturbelassenen Materialien, die für viele Jahre der Nutzung gemacht sind.
Architektonische Eleganz: Das klassische Satteldach
Gekrönt wird das Haus von einem zeitlos schönen Satteldach mit einer angenehmen Dachneigung von 35°. Diese klassische Form verleiht dem Leonardo nicht nur eine stabile und schneesichere Kontur, sondern auch einen unverwechselbaren Charakter. Mit einer Dachfläche von 90 m² bietet es ausreichend Raum für individuelle Dacheindeckungen. Die unterschiedlich langen Dachüberstände – 50 cm vorne, 150 cm hinten, 40 cm links und 90 cm rechts – schützen die Fassade effektiv vor Witterungseinflüssen und schaffen gleichzeitig reizvolle Schattenspiele und die Möglichkeit, im trockenen Freisitz auch bei leichtem Regen die Natur zu genießen. Besonders der große Überstand hinten lädt zur Gestaltung einer geschützten Terrasse ein.
Weitläufigkeit und Großzügigkeit: Die Maße, die überzeugen
Die Dimensionen des Leonardo sind beeindruckend. Bei einem Wandaußenmaß von 714 x 671 cm entsteht ein Haus mit echter Präsenz. Die variable Seitenwandhöhe von 221 cm bis zu 327 cm unterstreicht den großzügigen Raumeindruck und ermöglicht lichtdurchflutete Räume. Gipfelt wird dieser Eindruck von einer Firsthöhe von 519 cm, die im Inneren für ein luftiges, fast majestätisches Gefühl sorgt. Der umbaute Raum von 186 m³ unterstreicht das Volumen dieses Hauses, das weit mehr ist als nur Grundfläche – es ist ein Raumgefühl zum Wohlfühlen und Durchatmen.
Ihr individuelles Traumhaus: Flexibilität ohne Grenzen
Das Freizeithaus Leonardo ist die perfekte Basis für Ihre persönlichen Vorstellungen. Wir liefern nicht nur ein Haus, wir realisieren Ihr Projekt. Wünschen Sie eine moderne Schalung für einen zeitgemäßen Look? Planen Sie einen Anbau für eine zusätzliche Werkstatt oder ein Gästezimmer? Oder träumen Sie von einer gemütlichen Veranda für laue Sommerabende und einem praktischen Carport für Ihr Auto? All das ist möglich! Unser Team berät Sie gerne und plant Ihren Leonardo genau nach Ihren Vorstellungen und den Gegebenheiten Ihres Grundstücks.
Das Freizeithaus Leonardo ist mehr als eine Investition in Holz und Stein. Es ist eine Investition in Lebensqualität, in unvergessliche Momente mit Familie und Freunden und in einen Ort, an dem Sie für immer abschalten und Kraft tanken können. Starten Sie jetzt in Ihr persönliches Abenteuer und lassen Sie sich von uns Ihren individuellen Leonardo entwerfen.
(Terrasse 714 x 250, Brüstung ohne Abdeckbretter, ohne Fensterläden, ohne Fußboden)
Das könnte dir gefallen
-

Ferienhaus Egersund 1182 x 782
61.900,00 €Optionen auswählenEstimated delivery dates: März 21, 2026 - März 26, 2026 -

Freizeithaus Weekend 350 x 600
17.490,00 €Optionen auswählenEstimated delivery dates: März 21, 2026 - März 26, 2026 -

Ferienhaus Reisbach 818 x 619
92.000,00 €Optionen auswählenEstimated delivery dates: März 21, 2026 - März 26, 2026
Lieferzeit
Keine Angabe
Bewertungen
Freizeithaus Leonardo 714 x 671
63.900,00 €
Preis inkl. MwSt.* zzgl. Versandkosten















