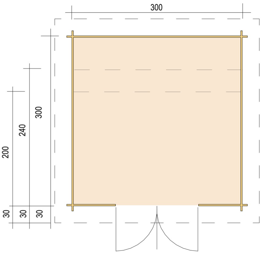
Das Gartenhaus Dublin ist in den Größen 300×200, 300×240 und 300×300 cm erhältlich. Das modernen Pultdach-Design vereint nordische Handwerkskunst mit zeitgemäßer Funktionalität. Mit seinen kompakten Außenmaßen und der 28 mm starken Blockbohlen-Wandstärke bietet es optimalen Stauraum bei gleichzeitig stabiler Konstruktion. Das charakteristische Pultdach mit 10° Neigung verleiht dem Gartenhaus einen architektonischen Reiz und sorgt für optimalen Wasserablauf.
Hochwertiges Nadelholz aus nachhaltiger Forstwirtschaft
Gefertigt aus ausgewähltem Nadelholz nordskandinavischer Wälder, überzeugt dieses Gartenhaus durch:
- Gleichmäßig helle, naturbelassene Optik ohne störende Verfärbungen oder Bläue
- Nur gesunde, fest verwachsene Äste für ein homogenes Erscheinungsbild
- Schonend auf ca. 16 % Restfeuchte getrocknet für maximale Formstabilität
- Natürliche Witterungsbeständigkeit für lange Lebensdauer
Diese Qualitätsmerkmale garantieren, dass Ihr Gartenhaus auch nach Jahren noch ansprechend aussieht und stabil bleibt.
Praktische Doppeltür für einfache Zugänglichkeit
Die großzügige Doppeltür (DT 150 x 184 cm) ermöglicht:
- Bequemes Einlagern von Gartengeräten und Fahrrädern
- Einfachen Transport sperriger Gegenstände
- Guten Zugang für Reinigung und Organisation
- Belüftung des Innenraums bei geöffneter Tür
Optimierte Dachkonstruktion mit 30 cm Überstand
Das große Pultdach bietet:
- Umlaufenden 30 cm Dachüberstand zum Schutz der Wände
- Anschluss für Dachrinne zur kontrollierten Wasserableitung möglich
Vielfältige Nutzungsmöglichkeiten
Dieses vielseitige Gartenhaus eignet sich ideal als:
- Geräteschuppen für Werkzeuge und Gartengeräte
- Fahrradunterstand für 2-3 Räder
- Trockenlager für Brennholz oder Saisonartikel
- Werkstatt mit optionalem Fenster für Tageslicht
- Gartenbüro oder kreativer Rückzugsort
Technische Daten im Überblick
- Bauweise: Blockhaus/Zuluna
- Wandhöhen: 234 cm (vorne), 201 cm (hinten)
- Dach: Pultdach
- Tür: Doppeltür DT 150 x 184 cm
- Material: 28 mm Nadelholz, 16% Restfeuchte
Warum dieses Gartenhaus?
- Platzsparende Maße bei optimaler Nutzfläche
- Moderne Optik durch Pultdach-Design
- Hochwertige Verarbeitung aus nordischem Holz
- Flexible Nutzung für verschiedene Zwecke
- Einfacher Aufbau mit vorgefertigten Elementen
Verleihen Sie Ihrem Garten modernen Charme – mit diesem hochwertigen Blockhaus im zeitgemäßen Pultdach-Design! Die Kombination aus skandinavischer Holzqualität und durchdachter Konstruktion macht dieses Gartenhaus zu einer langlebigen Investition für Jahre zuverlässiger Nutzung.
Das könnte dir gefallen
-

Gartenhaus Haldis 530×350
7.399,00 €Optionen auswählenEstimated delivery dates: März 21, 2026 - März 26, 2026 -

Gartenhaus Nova 360 XL
8.299,00 €Optionen auswählenEstimated delivery dates: März 21, 2026 - März 26, 2026 -

Gartenhaus Edinburgh 450×500
17.490,00 €In den WarenkorbEstimated delivery dates: März 21, 2026 - März 26, 2026
Lieferzeit
Keine Angabe
Bewertungen
Gartenhaus Dublin 300
2.399,00 €
Preis inkl. MwSt.* zzgl. Versandkosten










