Luxuriöses Blockhaus mit atemberaubender Glasfront und 70 mm Wandstärke
Das Ferienhaus Dixie ist ein Meisterstück moderner Blockhaus-Architektur. Mit seiner imposanten 70 mm Wandstärke, der gewaltigen Glasfront und der durchdachten Aufteilung auf zwei Ebenen setzt dieses Modell neue Maßstäbe im anspruchsvollen Ferienhausbau. Es verbindet die rustikale Wärme nordischen Holzes mit der Leichtigkeit einer luxuriösen Verglasung und schafft so einen Rückzugsort, der sowohl Schutz als auch Offenheit zur Natur bietet.
Hochwertige Materialien mit ökologischer Verantwortung
Die Basis des Ferienhauses Dixie bildet hochwertiges nordisches Holz, das für seine außergewöhnliche Dichte, seine helle Farbgebung und seine natürlichen Dämmeigenschaften geschätzt wird. Dieses langsam gewachsene Nadelholz aus den kühlen Wäldern Skandinaviens sorgt für ein gesundes Raumklima, indem es Feuchtigkeit reguliert und Schadstoffe aus der Luft filtert.
Unser Hersteller verbindet diese natürliche Ressource mit einem klaren Bekenntnis zur Nachhaltigkeit. Durch Zertifikate wie das FSC®-Siegel wird garantiert, dass das verbaute Holz aus verantwortungsvoll bewirtschafteten Wäldern stammt. Sie erhalten nicht nur ein Produkt höchster Qualität, sondern leisten auch einen aktiven Beitrag zum Schutz unserer Ökosysteme für kommende Generationen.
Präzisionstechnologie für maximale Stabilität
Was die Natur uns schenkt, veredeln wir mit modernster Technik. Die Fertigung des Ferienhauses Dixie erfolgt mit modernster CNC-gesteuerter Technologie, die jedes Bauteil mit einer Präzision im Zehntelmillimeter-Bereich zuschneidet. Diese Genauigkeit ist die Grundvoraussetzung für das Herzstück unserer Konstruktion: die winddichte Chalet-Verbindung.
Bei diesem System greifen die massiven Blockbohlen wie maßgefertigte Puzzleteile ineinander. Die spezielle Profilierung sorgt dafür, dass sich die Hölzer beim Aufsetzen und durch ihr Eigengewicht fest zusammenfügen und eine nahezu luftundurchlässige Barriere bilden. Zugluft und Kälte haben so keine Chance.
Die Dixie wird mit einer beeindruckenden Wandstärke von 70 mm gefertigt und nutzt das bewährte Doppelzahn- und Nut-System. Diese doppelte Verzahnung erhöht die Stabilität der Wände enorm, verhindert ein seitliches Verschieben der Bohlen und macht die Konstruktion besonders widerstandsfähig gegen extreme Windlasten. Mit dieser Wandstärke ist das Haus für den ganzjährigen Betrieb auch in anspruchsvollen Klimazonen bestens gerüstet.
Spektakuläre Glasfront für grenzenlosen Naturgenuss
Das architektonische Highlight der Dixie ist zweifellos das gewaltige Fensterelement im Format 2490 x 1830 mm. Diese fast 2,5 Meter breite und 1,8 Meter hohe Verglasung aus gehärteter Doppelverglasung verwandelt die Fassade in ein lebendiges Gemälde der umgebenden Landschaft. Hier verschmelzen Innen- und Außenraum zu einer Einheit – ob Sie beim Frühstück den Sonnenaufgang beobachten oder abends am Kaminfeuer den Sternenhimmel betrachten.
Ergänzt wird dieses Meisterstück durch vier weitere großzügige Fenster im Format 1506 x 1140 mm, die alle Räume mit Tageslicht durchfluten. Zwei kleinere Fenster (510 x 510 mm und 915 x 510 mm) sorgen für zusätzliche Helligkeit in Nebenbereichen. Sämtliche Verglasungen sind gehärtet und doppelverglast – ein Garant für hervorragende Wärmedämmung und hohe Sicherheit gegen Einbruchversuche.
Durchdachtes Türkonzept für flexible Nutzung
Die Erschließung der Dixie erfolgt über ein durchdachtes Türen-Ensemble:
-
Die 900 x 1980 mm große Haupteingangstür mit gehärteter Doppelverglasung empfängt Sie einladend und lichtdurchflutet.
-
Drei massive Holztüren (800 x 1980 mm) sorgen für Privatsphäre in den Schlaf- und Nebenräumen und unterstreichen den authentischen, rustikalen Charakter des Hauses.
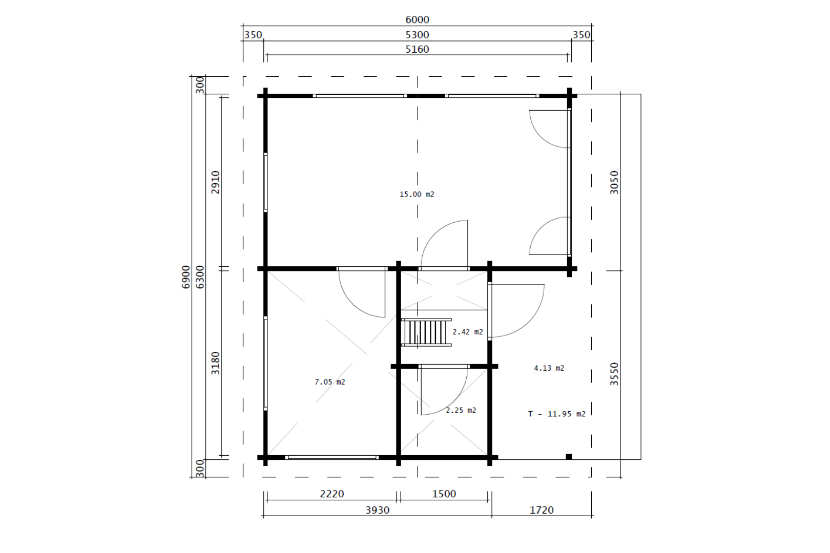
Großzügige Raumaufteilung mit Galerie
Mit Außenwandmaßen von 530 x 630 cm bietet die Dixie eine Grundfläche von insgesamt 39,02 m² (aufgeteilt in 26,72 m² und 12,3 m²), die sich in vier separate Räume gliedert. Diese Aufteilung ermöglicht vielfältige Nutzungsmöglichkeiten – ob als Elternschlafzimmer, Kinderzimmer, Arbeitszimmer oder zweites Wohnzimmer.
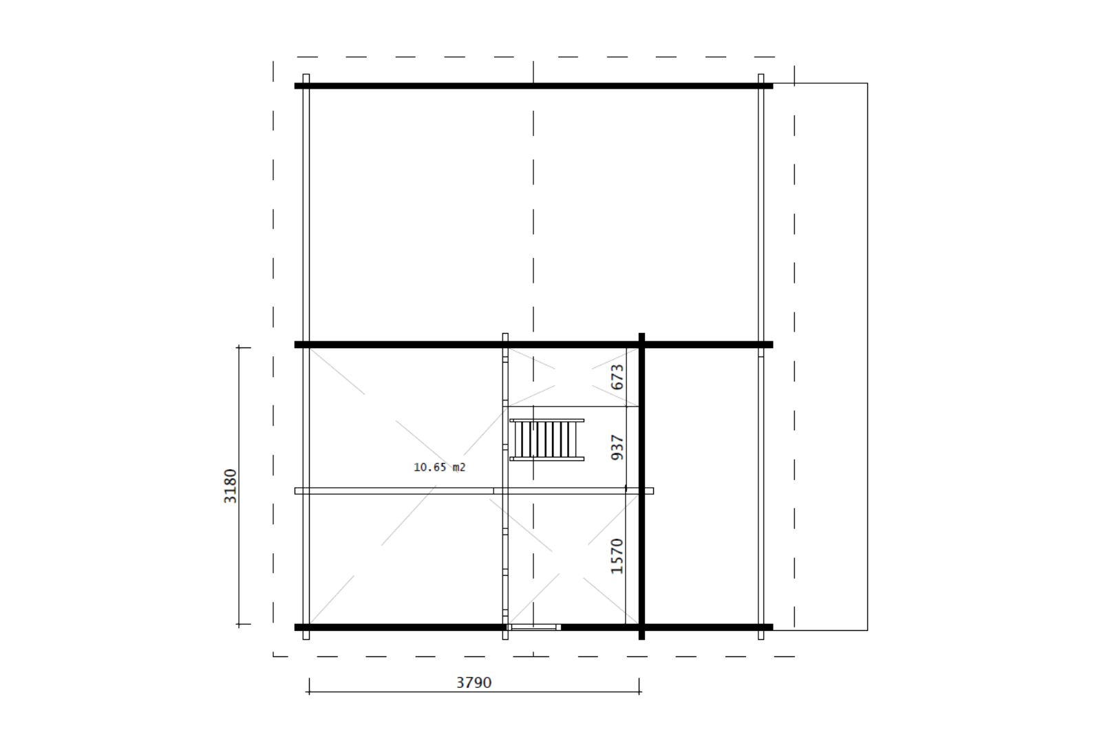
Ein besonderes Highlight ist der integrierte Dachboden, der über die mitgelieferte Leiter zugänglich ist. Dieser zusätzliche Raum erweitert die Nutzungsmöglichkeiten enorm – sei es als gemütliche Schlafgalerie für Kinder, als Stauraum oder als Rückzugsort zum Lesen und Träumen.
Komplett ausgestattet für den sofortigen Aufbau
Die Dixie wird als umfangreicher Bausatz geliefert, der alle wesentlichen Komponenten für eine schnelle und erfolgreiche Montage enthält:
- Massive Blockwände: 70 mm starke Bohlen mit Doppelzahn-Nut-System für optimale Stabilität und Dämmung.
- Robuster Bodenaufbau: Stabile 28 mm Dielen für einen belastbaren und warmen Innenfußboden.
- Sichere Dachkonstruktion: Hochwertige 18 mm Dachbretter bilden die solide Basis für Ihre finale Dacheindeckung.
- Terrasse inklusive: Die Terrasse ist fester Bestandteil des Lieferumfangs und lädt zum Verweilen im Freien ein.
- Komplettiertes Zubehör: Alle notwendigen Verbindungselemente (Schrauben, Winkel, Nägel) sind im Lieferumfang enthalten.
Technische Daten auf einen Blick
- Firsthöhe: 3848 mm – für ein luftiges, großzügiges Raumgefühl
- Wandhöhe: 2700 mm – angenehme Proportionen in allen Räumen
- Dachneigung: 24 Grad – optimaler Kompromiss zwischen Ästhetik und Funktionalität
- Dachfläche: 45,31 m² – verlässliche Planungsgrundlage für die Dacheindeckung
- Traufhöhen: 300 / 350 / 350 / 300 mm – durchdachte Dachkonstruktion
Fazit: Luxuriöses Wohnen im Blockhaus-Stil
Das Ferienhaus Dixie ist die ideale Wahl für alle, die das Besondere suchen. Die Kombination aus der massiven 70 mm Wandstärke, der spektakulären Verglasung mit XXL-Fensterelement, der winddichten Chalet-Verbindung mit Doppelzahn-System und dem integrierten Dachboden macht dieses Modell zu einem der luxuriösesten seiner Klasse. Wenn Sie Wert auf ökologische Nachhaltigkeit, höchste Verarbeitungsqualität und ein architektonisch anspruchsvoses Design legen, dann ist die Dixie Ihr perfektes Feriendomizil.
Das könnte dir gefallen
-

Iglu-Sauna Polar | Thermoholz
4.999,00 €In den WarenkorbEstimated delivery dates: März 23, 2026 - März 28, 2026 -

Iglu-Sauna Polar T | Thermoholz | + Terrasse
6.399,00 €In den WarenkorbEstimated delivery dates: März 23, 2026 - März 28, 2026 -

Iglu-Sauna Aurora V | Fichte | + Vorraum
5.699,00 €In den WarenkorbEstimated delivery dates: März 23, 2026 - März 28, 2026
Lieferzeit
Keine Angabe
Bewertungen
Ferienhaus Dixie 530 x 630 cm
14.990,00 €
Preis inkl. MwSt.* zzgl. Versandkosten









