Das Ferienhaus Summerville steht für modernen Wohnkomfort in natürlicher Holzbauweise – ein geräumiges Zuhause, das durch seine großzügigen Proportionen, hochwertige Materialien und flexible Nutzbarkeit besticht. Mit einer Wohnfläche von 102 m² und einem umbauten Raum von 702 m³ bietet dieses Holzhaus ausreichend Platz für Familien, die Wert auf Behaglichkeit und Langlebigkeit legen. Die durchdachte Konstruktion mit 94 mm Wandstärke und einer energieeffizienten Bauweise garantiert ein angenehmes Raumklima bei geringem Energieverbrauch – ideal als Feriendomizil oder ganzjähriger Wohnsitz.
Großzügige Raumaufteilung mit lichtdurchfluteten Wohnbereichen
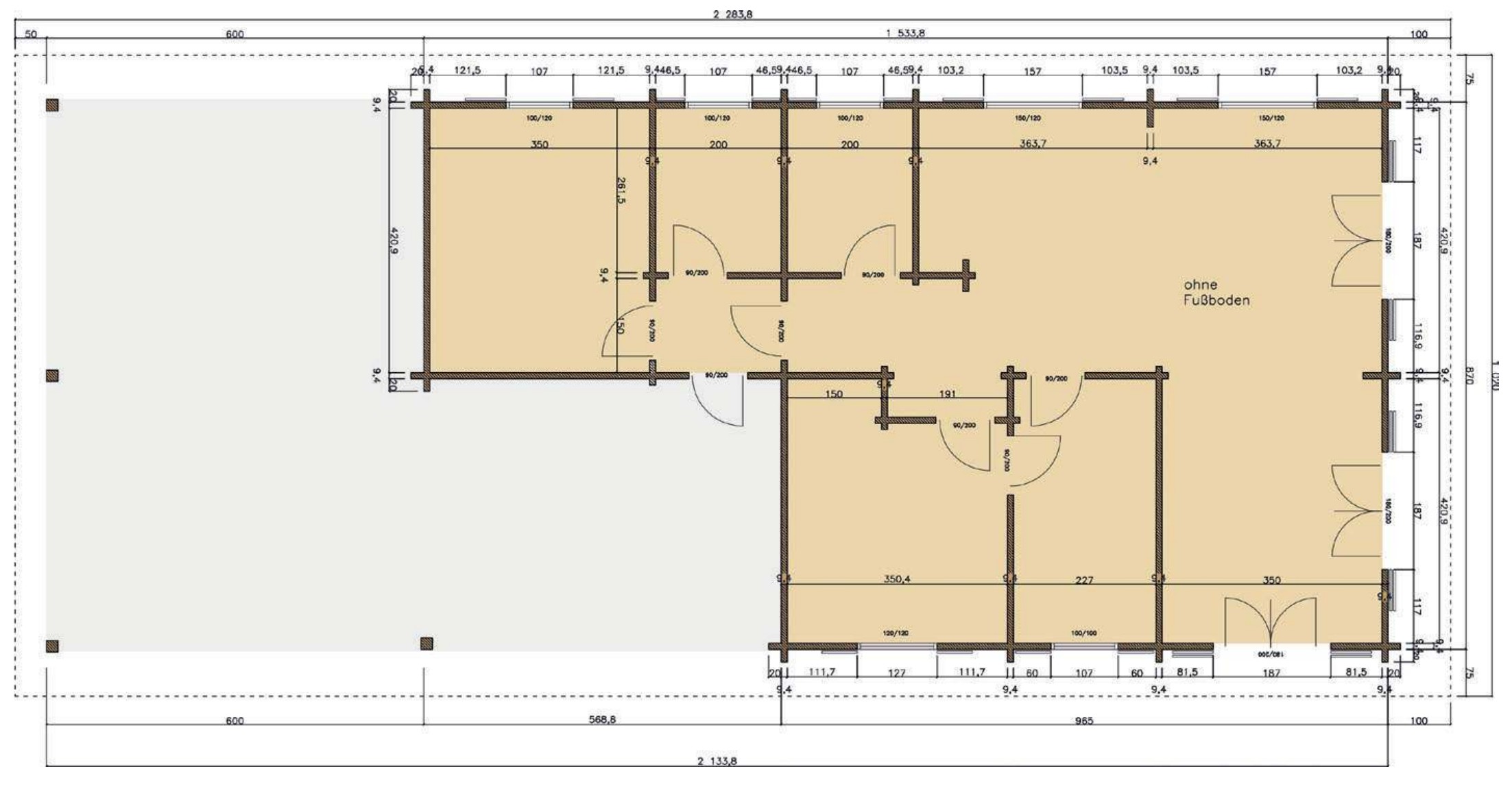
Das Ferienhaus Summerville überzeugt mit seinen Außenmaßen von 8,70 x 15,34 m, die viel Spielraum für individuelle Gestaltung bieten. Die Seitenwandhöhe von 3,02 m und die Firsthöhe von 4,57 m schaffen ein offenes, luftiges Raumgefühl, während das klassische Satteldach mit 20° Neigung für eine harmonische Optik sorgt. Die Dachfläche von 250 m² mit asymmetrischen Überständen (vorne 100 cm, hinten 650 cm, seitlich je 75 cm) verleiht dem Haus nicht nur architektonische Eleganz, sondern auch optimalen Wetterschutz.
Flexible Nutzung – vom Familienhaus bis zum Gästebereich mit separatem Eingang
Dank der großzügigen Grundfläche eignet sich das Ferienhaus Summerville für verschiedene Nutzungskonzepte:
- Familienwohnsitz mit offenem Wohn-/Essbereich und separaten Schlafzimmern
- Ferienhaus mit Gästebereich, optional mit eigenem Zugang
- Kombination aus Wohnraum und Homeoffice mit ruhigem Arbeitsbereich
- Barrierefreies Wohnen durch ebenerdige Gestaltung und breite Türdurchgänge
Durch optionalen Anbau einer Veranda, Sauna oder Garage lässt sich das Haus perfekt an Ihre Bedürfnisse anpassen.
Natürliche Behaglichkeit durch hochwertige Materialien
Das Ferienhaus Summerville wird aus massivem Holz gefertigt, das für ein ausgeglichenes Raumklima sorgt – im Winter kuschelig warm, im Sommer angenehm kühl. Das Summerville zeichnet sich durch eine zeitlose Ästhetik aus und fügt sich harmonisch in jede Landschaft ein.
Energieeffizienz und Nachhaltigkeit
Dank der dickwandigen Holzkonstruktion und der Möglichkeit zur Integration von Wärmepumpen oder Solaranlagen kann das Ferienhaus Summerville zusätzlich energieeffizient gestaltet werden. Die Bauweise trägt zu niedrigen Heizkosten bei und reduziert den ökologischen Fußabdruck – ideal für umweltbewusste Bauherren.
Individuelle Gestaltung – Ihr Traumhaus in massiver Holzbauweise
Wir realisieren das Ferienhaus Summerville maßgeschneidert nach Ihren Vorstellungen:
- Flexible Innenaufteilung (offenes Wohnkonzept oder klassische Zimmerstruktur)
- Verschiedene Dach- und Fassadengestaltungen (Schindeln, Metall oder Gründach)
- Zusätzliche Ausstattung wie Kamin, Fußbodenheizung oder Smart-Home-Systeme
Technische Daten im Überblick:
- Dachform: Satteldach
- Wandstärke: 94 mm
- Außenmaße (B/T): 8,70 x 15,34 m
- Seitenwandhöhe: 3,02 m
- Firsthöhe: 4,57 m
- Wohnfläche: 102 m²
- Umbauter Raum: 702 m³
- Dachfläche: 250 m²
- Dachneigung: 20°
- Dachüberstand: vorne 100 cm, hinten 650 cm, seitlich je 75 cm
Ein Zuhause für Generationen – Ihr Ferienhaus Summerville
Ein Holzhaus ist mehr als nur ein Gebäude – es ist ein Ort, an dem Erinnerungen entstehen. Das Ferienhaus Summerville bietet nicht nur Platz für die ganze Familie, sondern auch die Gewissheit, in einem qualitativ hochwertigen, langlebigen und nachhaltigen Zuhause zu leben.
Kontaktieren Sie uns jetzt und gestalten Sie Ihr persönliches Traumhaus!
Das könnte dir gefallen
-

Ferienhaus Memphis 450 x 705
17.499,00 €Optionen auswählenEstimated delivery dates: März 28, 2026 - Apr. 2, 2026 -

Freizeithaus Weekend 350 x 600
17.490,00 €Optionen auswählenEstimated delivery dates: März 28, 2026 - Apr. 2, 2026 -

Freizeithaus Leonardo 714 x 671
63.900,00 €Optionen auswählenEstimated delivery dates: März 28, 2026 - Apr. 2, 2026
Lieferzeit
Keine Angabe
Bewertungen
Ferienhaus Summerville 870 x 1534
105.000,00 €
Preis inkl. MwSt.* zzgl. Versandkosten




