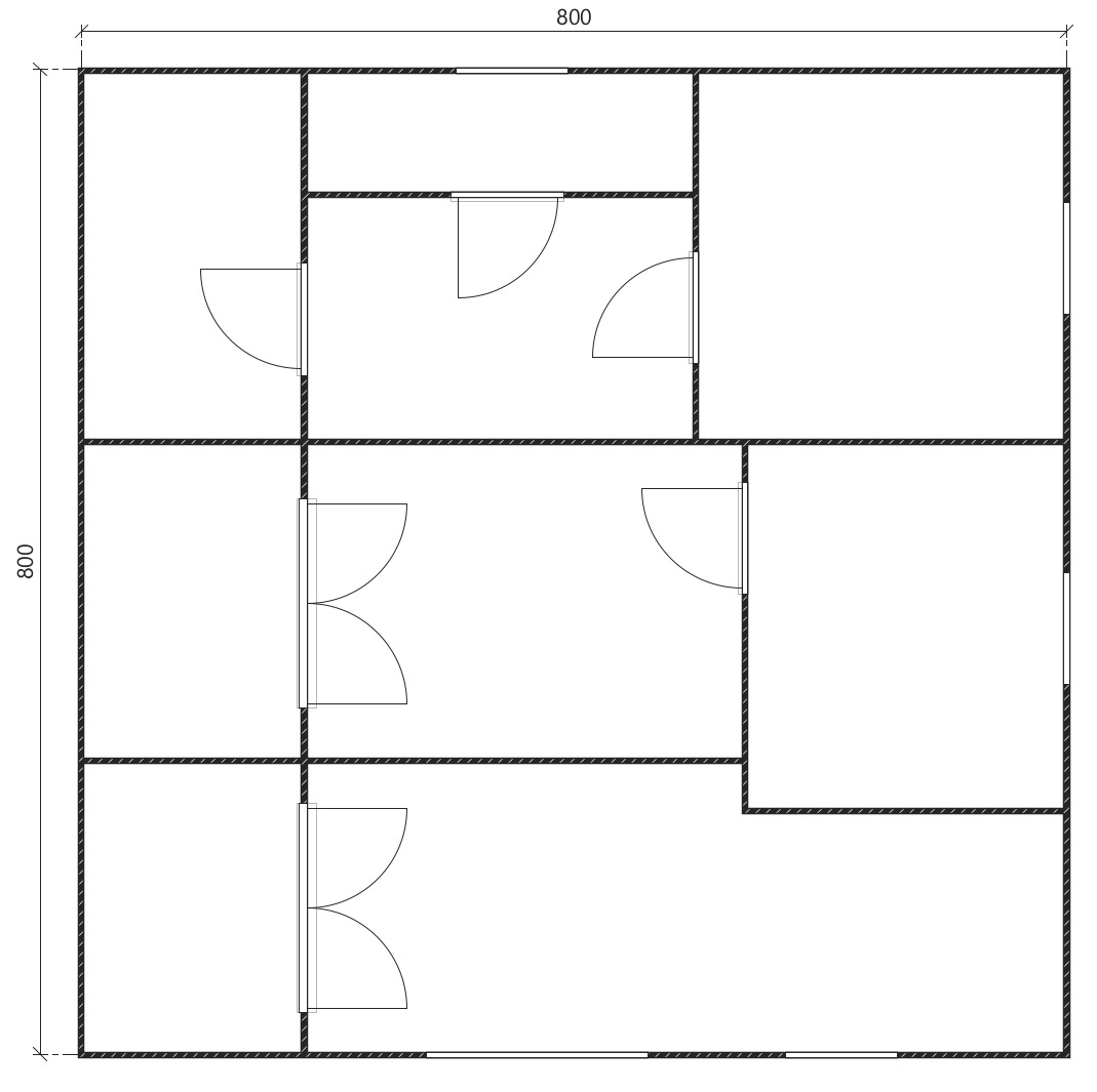
Genießen Sie Natur und Komfort in einem – das Sommerhaus Cusco 800×800 vereint nordische Gemütlichkeit mit funktionalem Design. Gefertigt aus hochwertigem nordischem Fichtenholz, besticht es durch Langlebigkeit und eine warme, natürliche Atmosphäre. Mit einer Wohnfläche von 44 m² und einer großzügigen Terrasse (16,02 m²) bietet es ausreichend Platz für entspannte Stunden im Grünen.
Raumaufteilung & Komfort
- 2 Schlafzimmer – Platz für kleine Familien oder Gäste
- 1 Badezimmer – praktisch und funktional eingerichtet
- Helle Wohn- und Küchenbereiche mit großen Fenstern (1 x 880×1200 mm, 3 x 880×880 mm) für viel Tageslicht
- Offene Terrasse unter Dach – ideal zum Entspannen bei jedem Wetter
- Satteldach im klassischen Stil für ein harmonisches Gesamtbild
Qualität im Detail
- Wandstärke 44 mm für angenehmes Raumklima und Stabilität
- Hölzerne Nut-und-Feder-Böden (19 mm) – geräuscharm, glatt und elegant
- Hochwertige Terrassendielen (25 mm, imprägniert) mit Fasen für optimale Belüftung und Wasserablauf
- Maßgeschneiderte Türen für einfachen Zugang (verschiedene Größen verfügbar)
Flexibel & Individuell
Das quadratische Grundrissdesign (8 x 8 m) passt perfekt auf jedes Grundstück. Wie alle unsere Häuser kann auch das Sommerhaus Cusco 800×800 nach Ihren Wünschen angepasst werden – von der Raumaufteilung bis zur Ausstattung.
Ideal für Naturliebhaber und kleine Familien, die Wert auf Qualität, Design und Funktionalität legen. Erleben Sie Urlaubsfeeling das ganze Jahr – in Ihrem persönlichen Holzhaus!
Das könnte dir gefallen
-

Gartenhaus Vertex 360x274V
4.999,00 €Optionen auswählenEstimated delivery dates: März 26, 2026 - März 31, 2026 -

Gartenhaus Clea 429×328
17.799,00 €Optionen auswählenEstimated delivery dates: März 26, 2026 - März 31, 2026 -

Gartenhaus Haldis 530×350
7.399,00 €Optionen auswählenEstimated delivery dates: März 26, 2026 - März 31, 2026
Lieferzeit
Keine Angabe
Bewertungen
Sommerhaus Cusco 800×800
17.799,00 €
Preis inkl. MwSt.* zzgl. Versandkosten









