Großzügige Dimensionen für unvergleichliche Entspannung
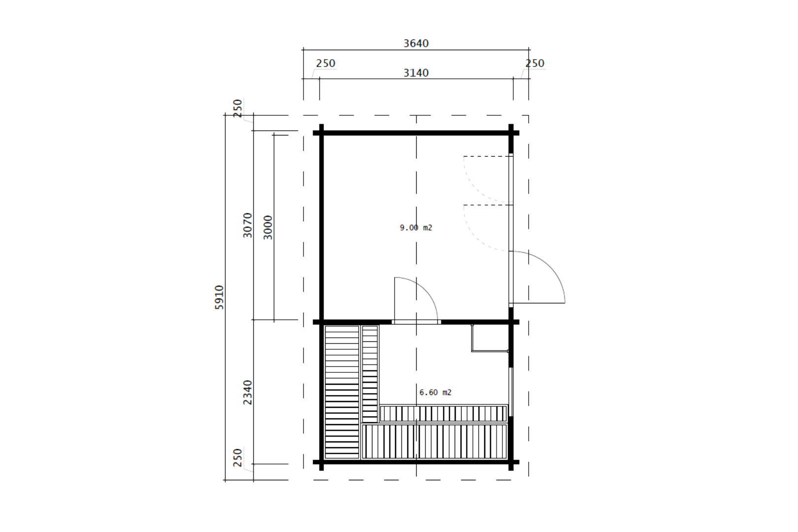
Die Gartensauna Cary verkörpert die perfekte Symbiose aus skandinavischer Saunatradition und modernem Wohlfühlambiente. Mit ihren beeindruckenden Außenmaßen von 541 x 314 cm und einer Grundfläche von 15,6 m² schafft diese erstklassige Sauna ausreichend Platz für erholsame Stunden zu zweit oder in geselliger Runde. Die großzügige Gesamthöhe von 2,9 Metern bei einer Wandhöhe von 2,43 Metern sorgt für ein angenehm offenes Raumgefühl und ermöglicht eine optimale Luftzirkulation – die Grundlage für ein authentisches Saunaerlebnis.
Die durchdachte Raumaufteilung mit zwei separaten Räumen bietet vielfältige Nutzungsmöglichkeiten: Während der Hauptraum als klassische Sauna dient, kann der zweite Raum ideal als Umkleide, Ruhebereich oder sogar als zusätzlicher Abkühlungsraum genutzt werden. Diese Flexibilität macht die Cary zu einer Investition in die ganzjährige Lebensqualität im eigenen Garten.
Meisterhafte Handwerkskunst mit winddichter Chalet-Verbindung
Was die Gartensauna Cary von herkömmlichen Modellen unterscheidet, ist die präzisionsgefertigte Blockbohlenkonstruktion mit dem innovativen Chalet-Verbindungssystem. Diese fortschrittliche Verbindungstechnik ermöglicht es den massiven Holzbohlen, nahtlos ineinanderzugreifen und eine außergewöhnlich dichte, windbeständige Abdichtung zu bilden. Die Wandstärke von beeindruckenden 70 mm garantiert nicht nur eine hervorragende Wärmedämmung, sondern verleiht der gesamten Struktur eine solide, langlebige Stabilität, die selbst extremen Witterungsbedingungen trotzt. Der Fußboden ist aus 28 mm starken Dielen gefertigt.
Die verwendeten Bohlen sind mit einem Doppelzahn- und Nut-System ausgestattet, das eine noch stärkere und sicherere Verbindung zwischen den einzelnen Elementen schafft. Diese Konstruktionsweise verbessert die Windbeständigkeit und Gesamtstabilität erheblich – ein entscheidender Vorteil für den ganzjährigen Einsatz im mitteleuropäischen Klima.
Hochwertige Verglasung für lichtdurchflutete Wohlfühlmomente
Die Gartensauna Cary ist mit erstklassigen Fenstern und Türen der Qualitätsklasse Q4 ausgestattet – die höchste Stufe für Holzbauelemente, die für exzellente Wärmedämmung und Langlebigkeit steht. Ein großzügiges Fenster mit den Maßen 80 x 80 cm und gehärteter Doppelverglasung lässt natürliches Licht in den Innenraum strömen und schafft eine Verbindung zur umgebenden Gartenlandschaft.
Die beiden Türen wurden mit besonderer Sorgfalt ausgewählt: Eine elegante Tür im Format 690 x 1936 mm mit gehärtetem Glas ermöglicht den bequemen Zugang, während die imposante Tür mit den Maßen 2420 x 1975 mm und ebenfalls gehärteter Doppelverglasung nicht nur als funktionales Element dient, sondern architektonisch eindrucksvoll den Eingangsbereich akzentuiert. Die großflächigen Verglasungen lassen die Grenzen zwischen Innen- und Außenraum verschwimmen und schaffen eine besondere Atmosphäre der Entspannung.
Durchdachte Dachkonstruktion für ganzjährigen Schutz
Die Dachkonstruktion der Gartensauna Cary wurde mit derselben Präzision geplant wie das gesamte Bauwerk. 18 mm starke Dachbretter bilden eine stabile und witterungsbeständige Dachfläche von 22,9 m². Die Dachneigung von 17,81 Grad gewährleistet einen optimalen Wasserabfluss bei Regen und Schnee, während die gleichmäßigen Traufmaße von 250 mm rundum für einen harmonischen, ausgewogenen Gesamteindruck sorgen. Alle erforderlichen Verbindungselemente sind selbstverständlich im Lieferumfang enthalten.
Flexibilität durch Spiegelbarkeit
Ein besonderes Plus der Gartensauna Cary ist ihre Spiegelbarkeit. Diese Option ermöglicht es, die Sauna optimal an die Gegebenheiten Ihres Gartens anzupassen. Ob Sie den Eingang nach Süden zur Terrasse oder nach Norden zum Garten hin ausrichten möchten – die flexible Konfiguration erlaubt eine perfekte Integration in Ihr persönliches Gartenkonzept.
Nachhaltige Qualität aus nordischen Wäldern
Die Gartensauna Cary wird aus hochwertigem nordischem Holz gefertigt, das aus nachhaltig bewirtschafteten Wäldern stammt. Die FSC®-Zertifizierung des Herstellers unterstreicht das Engagement für umweltbewusste Produktion und verantwortungsvolle Forstwirtschaft. Jedes Holzstück durchläuft eine präzise Fertigung mit modernster Technologie in den hochmodernen Produktionsstätten.
Die Kombination aus traditionellem Handwerk und modernster Fertigungstechnik garantiert eine gleichbleibend hohe Qualität und Passgenauigkeit, die die Montage erleichtert und für eine lange Lebensdauer sorgt. Ob Sie als erfahrener Heimwerker selbst Hand anlegen oder professionelle Hilfe in Anspruch nehmen – die durchdachte Konstruktion macht den Aufbau überschaubar und erfolgreich.
Ihr persönliches Refugium im Grünen
Die Gartensauna Cary ist weit mehr als nur ein Ort zum Schwitzen. Sie ist ein Rückzugsort, an dem Sie dem Alltag entfliehen, zur Ruhe kommen und neue Kraft schöpfen können. Die Verbindung von hochwertigen Materialien, durchdachter Konstruktion und ästhetischem Design schafft einen Raum, der Körper und Geist gleichermaßen anspricht.
Ob an kalten Wintertagen, wenn der Dampf der Sauna in der klaren Luft aufsteigt, oder an lauen Sommerabenden, wenn die tiefstehende Sonne durch die großen Fenster fällt – die Gartensauna Cary wird schnell zum beliebtesten Ort in Ihrem Garten. Erleben Sie, wie die wohltuende Wärme Verspannungen löst, die Durchblutung fördert und für tiefe Entspannung sorgt. Verbinden Sie das traditionelle Saunaerlebnis mit dem Luxus, diese Wohlfühloase direkt vor Ihrer Haustür zu haben.
Entscheiden Sie sich für die Gartensauna Cary und holen Sie sich ein Stück nordische Lebensart in Ihren Garten – für mehr Lebensqualität, Entspannung und genussvolle Momente das ganze Jahr über.
Das könnte dir gefallen
-

Gartensauna Lio
6.999,00 €Optionen auswählenEstimated delivery dates: Apr. 5, 2026 - Apr. 10, 2026 -

Saunahaus TORI 500
14.499,00 €In den WarenkorbEstimated delivery dates: Apr. 5, 2026 - Apr. 10, 2026 -

Gartensauna Yukon
10.490,00 €Optionen auswählenEstimated delivery dates: Apr. 5, 2026 - Apr. 10, 2026
Lieferzeit
Keine Angabe









