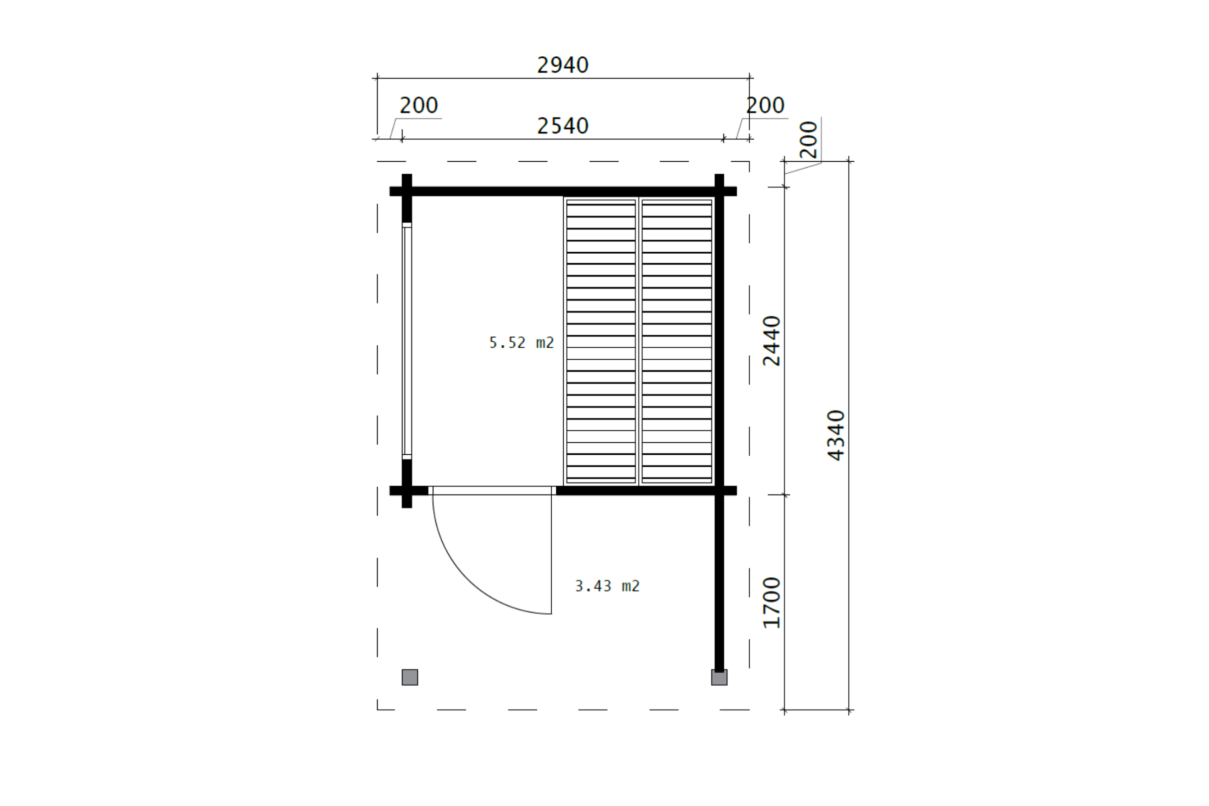
Die Gartensauna Lennard setzt neue Maßstäbe in der Verbindung von modernem Design und traditioneller Saunakultur. Mit ihren außergewöhnlichen Außenmaßen von 254 x 414 cm präsentiert sich dieses architektonische Highlight als langgestreckte, elegante Struktur, die durch ihre klaren Linien und die durchdachte Formsprache besticht. Die Grundfläche von 5,52 m² täuscht etwas über das tatsächliche Raumgefühl hinweg, denn die besondere Geometrie schafft ein überraschend offenes und luftiges Ambiente.
Die Gesamthöhe von 2,56 Metern bei einer Wandhöhe von 2,29 Metern sorgt für ein angenehm proportionertes Raumgefühl und optimale Voraussetzungen für ein authentisches Saunaklima. Als Einraum-Sauna konzipiert, bietet die Lennard ein puristisches Saunaerlebnis, das ganz auf das Wesentliche fokussiert ist: ungestörte Entspannung in einer ästhetisch gestalteten Umgebung aus edlem nordischem Holz.
Spektakuläres Panoramafenster als architektonisches Herzstück
Das herausragende Merkmal der Gartensauna Lennard ist das beeindruckende Panoramafenster mit den Maßen 1660 x 1830 mm – eine großzügige Verglasung, die ihresgleichen sucht. Dieses architektonische Highlight der höchsten Qualitätsklasse Q5 mit gehärteter Doppelverglasung öffnet den Saunaraum vollständig zur umgebenden Gartenlandschaft und schafft eine einzigartige Verbindung zwischen dem warmen, duftenden Saunainneren und der natürlichen Umgebung.
Die Qualitätsstufe Q5 repräsentiert das absolute Premium-Segment für Holzbauelemente und steht für exzellente Wärmedämmung, außergewöhnliche Langlebigkeit und höchste Wertigkeit. Das großflächige Fenster lässt natürliches Licht in Strömen in den Innenraum fallen und verwandelt die Sauna bei Tag in einen lichtdurchfluteten Wohlfühlort, während es bei Nacht den Blick in den Sternenhimmel freigibt – ein Saunaerlebnis der besonderen Art, das alle Sinne anspricht.
Großzügiges Vordach – Schutz und Freiheit zugleich
Ein weiteres herausragendes Merkmal der Gartensauna Lennard ist das großzügig bemessene Vordach mit einer Tiefe von 1700 mm. Diese architektonisch integrierte Überdachung schafft einen geschützten Außenbereich, der die Nutzungsmöglichkeiten der Sauna erheblich erweitert und zu einem echten Mehrwert wird.
Hier können Sie nach dem Saunagang an der frischen Luft abkühlen, ohne direkt der Witterung ausgesetzt zu sein – ein unschätzbarer Vorteil besonders in der kühleren Jahreszeit. Das Vordach lädt dazu ein, Saunabesuche in ruhigen Momenten zu genießen, draußen zu verweilen und den Blick in den Garten schweifen zu lassen. Ausgestattet mit wetterfesten Sitzgelegenheiten wird dieser Bereich schnell zum beliebtesten Ort für entspannte Stunden im Freien – ob allein zur stillen Einkehr oder in besinnlicher Zweisamkeit.
Meisterhafte Konstruktion mit winddichter Chalet-Verbindung
Das Herzstück der Gartensauna Lennard bildet die präzisionsgefertigte Blockbohlenkonstruktion mit dem innovativen Chalet-Verbindungssystem. Diese fortschrittliche Verbindungstechnik ermöglicht es den massiven Holzbohlen, nahtlos ineinanderzugreifen und eine außergewöhnlich dichte, windbeständige Abdichtung zu bilden. Die Wandstärke von 70 mm garantiert nicht nur eine hervorragende Wärmedämmung und Energieeffizienz, sondern verleiht der gesamten Struktur eine solide, langlebige Stabilität, die selbst extremen Witterungsbedingungen trotzt. Der Fußboden ist aus 28 mm starken Dielen gefertigt.
Die verwendeten Bohlen sind mit einem Doppelzahn- und Nut-System ausgestattet, das für eine besonders starke und sichere Verbindung zwischen den einzelnen Elementen sorgt. Diese hochentwickelte Konstruktionsweise verbessert die Windbeständigkeit und Gesamtstabilität erheblich – ein entscheidender Vorteil für den ganzjährigen Einsatz und eine Investition, die über Jahrzehnte Freude bereitet.
Elegante Verglasung für repräsentativen Zugang
Die Gartensauna Lennard ist mit einer erstklassigen Tür der höchsten Qualitätsklasse Q5 ausgestattet. Die Tür im Format 840 x 1955 mm mit gehärteter Doppelverglasung ermöglicht einen repräsentativen Zugang und fungiert gleichzeitig als weiteres lichtspendendes Element. Die großzügige Verglasung der Tür harmoniert perfekt mit dem Panoramafenster und schafft ein stimmiges Gesamtbild, das durch seine ästhetische Geschlossenheit überzeugt.
Die Q5-Klassifizierung garantiert nicht nur höchste Qualität, sondern auch exzellente Dämmeigenschaften und eine lange Lebensdauer – für dauerhafte Freude an Ihrer Investition.
Stabile Dachkonstruktion mit harmonischen Proportionen
Die Dachkonstruktion der Gartensauna Lennard wurde mit derselben Präzision geplant wie das gesamte Bauwerk. 18 mm starke Dachbretter bilden eine stabile und witterungsbeständige Dachfläche von 12,76 m². Die sanfte Dachneigung von 3 Grad verleiht der Sauna ein modernes, klares Erscheinungsbild, während die gleichmäßigen Traufmaße von 200 mm rundum für einen harmonischen, ausgewogenen Gesamteindruck sorgen. Alle erforderlichen Verbindungselemente sind selbstverständlich im Lieferumfang enthalten.
Nordische Holzqualität aus nachhaltiger Forstwirtschaft
Die Gartensauna Lennard wird aus hochwertigem nordischem Holz gefertigt, das aus nachhaltig bewirtschafteten Wäldern stammt. Die FSC®-Zertifizierung des Herstellers unterstreicht das tief verwurzelte Engagement für umweltbewusste Produktion und verantwortungsvolle Forstwirtschaft. Jedes Holzstück durchläuft eine präzise Fertigung mit modernster Technologie in den hochmodernen Produktionsstätten auf der estnischen Insel Saaremaa.
Das nordische Holz ist bekannt für seine außergewöhnliche Dichte, Festigkeit und Widerstandsfähigkeit – ideale Eigenschaften für den Bau einer Sauna, die über Generationen Bestand haben soll. Die langsame Wachstumsgeschwindigkeit in den nördlichen Breitengraden sorgt für besonders enge Jahresringe und damit für eine überdurchschnittliche Holzqualität, die sich in Langlebigkeit und Stabilität auszahlt.
Traditionelle Handwerkskunst trifft Hightech-Fertigung
Die einzigartige Kombination aus traditionellem Handwerk und modernster Fertigungstechnik garantiert eine gleichbleibend hohe Qualität und Passgenauigkeit, die die Montage erleichtert und für eine lange Lebensdauer sorgt. In den hochmodernen Produktionsanlagen auf Saaremaa wird jedes Bauteil mit Präzision gefertigt, bevor es sicher verpackt den Weg zu Ihnen antritt.
Ob Sie als erfahrener Heimwerker selbst Hand anlegen oder professionelle Hilfe in Anspruch nehmen – die durchdachte Konstruktion macht den Aufbau überschaubar und erfolgreich. Die präzise vorgefertigten Elemente fügen sich dank des innovativen Chalet-Verbindungssystems passgenau zusammen und ermöglichen eine zügige Montage.
Ihr puristisches Refugium für ungestörte Entspannung
Die Gartensauna Lennard ist weit mehr als nur ein Ort zum Schwitzen – sie ist ein architektonisches Statement und ein Rückzugsort für alle, die das Besondere suchen. Die Konzentration auf einen einzigen, großzügig dimensionierten Raum schafft eine Atmosphäre der Klarheit und Ruhe, die perfekt auf das Saunaerlebnis abgestimmt ist. Hier gibt es keine Ablenkungen, nur Sie, die wohltuende Wärme und den Blick in die Natur.
Die Verbindung von hochwertigen Materialien, durchdachter Konstruktion und ästhetischem Design schafft einen Raum, der Körper und Geist gleichermaßen anspricht. Ob an kalten Wintertagen, wenn der Dampf der Sauna in der klaren Luft aufsteigt und Sie geschützt unter dem Vordach abkühlen, oder an lauen Sommerabenden, wenn das Licht durch das riesige Panoramafenster fällt – die Gartensauna Lennard wird schnell zum beliebtesten Ort in Ihrem Garten.
Erleben Sie, wie die wohltuende Wärme Verspannungen löst, die Durchblutung fördert und für tiefe Entspannung sorgt. Verbinden Sie das traditionelle Saunaerlebnis mit dem Luxus, diese Wohlfühloase direkt vor Ihrer Haustür zu haben – und das mit einem architektonischen Highlight, das in seiner Klasse seinesgleichen sucht.
Entscheiden Sie sich für die Gartensauna Lennard und holen Sie sich ein Stück nordische Lebensart in Ihren Garten – für mehr Lebensqualität, Entspannung und genussvolle Momente das ganze Jahr über, in einem Design, das Maßstäbe setzt.
Das könnte dir gefallen
-

Saunahaus Moderno
12.499,00 €Optionen auswählenEstimated delivery dates: Apr. 5, 2026 - Apr. 10, 2026 -

Saunahaus TORI 600
18.499,00 €In den WarenkorbEstimated delivery dates: Apr. 5, 2026 - Apr. 10, 2026 -

Sauna LUNA 330
8.999,00 €In den WarenkorbEstimated delivery dates: Apr. 5, 2026 - Apr. 10, 2026
Lieferzeit
Keine Angabe






