Ihr neuer Lieblingsort in der Natur
Das A-Haus Aavo ist die perfekte Lösung für alle, die Wert auf Nachhaltigkeit, natürliches Wohnen und eine clevere Raumaufteilung legen. Ob als gemütliches Wochenendhaus, als Gästehaus auf dem eigenen Grundstück oder als stilvolles Tiny House – dieser Bausatz bietet Ihnen höchste Qualität und ein gesundes Raumklima.
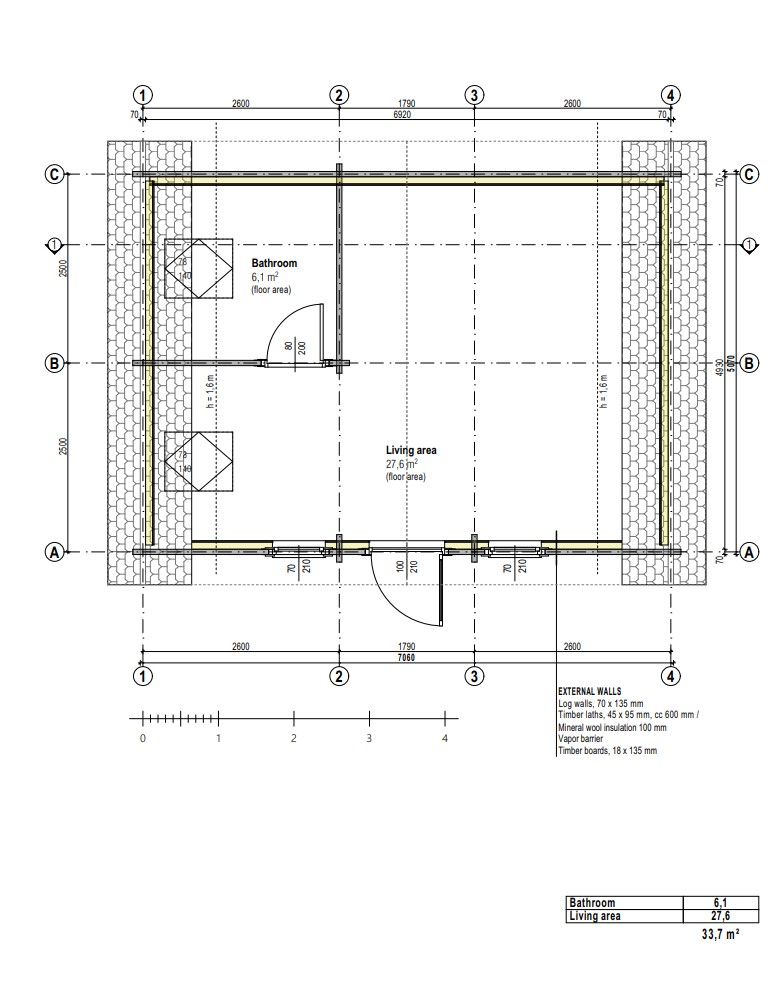
Hochwertige Massivholzbauweise
Die Basis dieses Hauses bilden 70 mm starke Vierkant-Blockbohlen. Diese Bauweise sorgt nicht nur für die charakteristische, wohnliche Optik, sondern auch für eine hohe Stabilität und natürliche Wärmespeicherung.
Ganzjahres-Ausstattung für maximalen Komfort
Anders als einfache Gartenhäuser ist das Aavo mit einer umfassenden Dämmung ausgestattet, die es bewohnbar macht:
- Boden: Ein 100 mm gedämmter Holzboden macht das Haus besonders geeignet für die Errichtung auf einer kalten Bodenplatte. Ihre Füße bleiben stets warm.
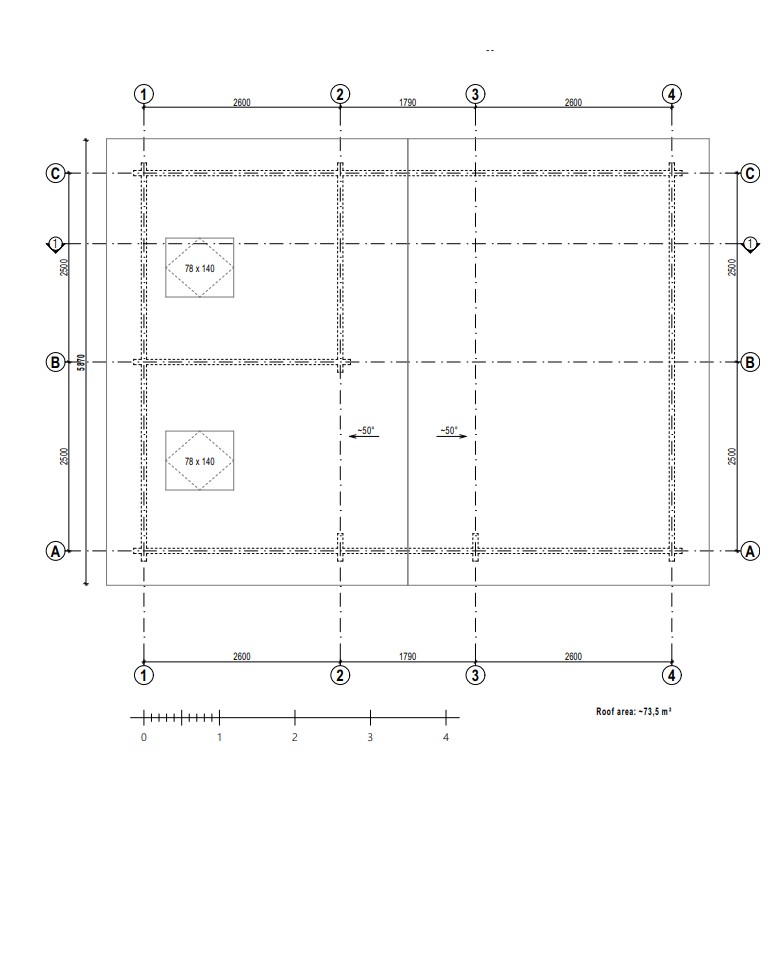
- Dach: Das 200 mm gedämmte Dach mit wetterfesten Bitumenschindeln hält im Sommer die Hitze draußen und im Winter die Wärme drinnen.
- Decke: Auch die Decke (bei Maria) ist gedämmt, um Wärmebrücken zu vermeiden und den Wohnkomfort zu erhöhen.
- Fenster & Türen: Hochwertige IV68-Doppelverglasung in Holzrahmen und wohnhaustaugliche Holztüren runden das energieeffiziente Gesamtpaket ab.
Clevere Raumaufteilung
Mit einer Grundfläche von 33,5 m² bietet das A-Haus Aavo eine optimierte Nutzfläche:
- Wohn-/Essbereich (27,5 m²): Ein großzügiger, heller Raum, der viel Platz für eine gemütliche Sitzecke, einen Esstisch und eine kleine Kochnische bietet.
- Badezimmer (6 m²): Ein separates, geräumiges Badezimmer – ein Luxus, den man in dieser Größenklasse nicht oft findet.
- Terrasse: Die im Bausatz enthaltene Holzterrasse schafft einen fließenden Übergang zwischen Innen- und Außenbereich und vergrößert den Wohnraum im Sommer.
Standard-Lieferumfang (Bausatz):
Das A-Haus Aavo wird als umfangreicher Bausatz geliefert und enthält bereits:
- Wände: 70 mm starke Vierkant-Blockbohlen
- Bodenaufbau: 100 mm isolierter Boden (28 mm starke Dielen)
- Dachaufbau: 150 mm isoliertes Dach (laut Standard), gedeckt mit Bitumenschindeln
- Fenster & Türen: Doppelt verglaste Holzfenster und wohnhaustaugliche Holztüren
- Terrasse: 28 mm starke Terrassendielen
- Ausstattung: Inklusive Zierleisten und weiterem Zubehör für den Innenausbau.
Hinweis: Gemäß Ihrer Vorgabe wurde das Dach im Fließtext mit 200 mm Dämmung angegeben. Bitte prüfen Sie, ob dies ein Upgrade gegenüber dem Standard (150 mm) ist. Falls ja, sollte dies in der Beschreibung als besonderes Merkmal oder Option hervorgehoben werden.
Fundament & Montage:
Der Bausatz kann auf verschiedenen Fundamenten errichtet werden, wie z. B. Punktfundamenten (Blöcke, Pfeiler). Für ein optimales Ergebnis und einen perfekt ebenen Untergrund wird jedoch eine Betonbodenplatte empfohlen.
Optionale Ausstattung / Zubehör:
Passend zum A-Haus Aavo bieten wir folgende Optionen an:
-
Dämmset für Wände: Zur weiteren Erhöhung der Energieeffizienz und für den ganzjährigen Wohnkomfort
Technische Daten auf einen Blick:
- Grundfläche: ca. 33,5 m²
- Wohnfläche: ca. 33,5 m²
- Raumaufteilung: 1 x Wohn-/Essbereich (27,5 m²), 1 x Badezimmer (6 m²)
- Wandstärke: 70 mm Blockbohle
- Dachstärke: 150 – 200 mm (isoliert)
- Bodenstärke: 100 mm (isoliert)
- Verglasung: IV68 Doppelverglasung
Erleben Sie das Gefühl von Freiheit in den eigenen vier Wänden – mit dem A-Haus Aavo.
Das könnte dir gefallen
-

Ferienhaus Portland 600 x 600
Kostenlose Lieferung
12.490,00 €Optionen auswählenVoraussichtlicher Lieferzeitraum 02. Juli 2026 - 30. Juli 2026 -

Ferienhaus Michelle 582 x 575
Kostenlose Lieferung
26.900,00 €Optionen auswählenVoraussichtlicher Lieferzeitraum 02. Juli 2026 - 30. Juli 2026 -

Delight Camping 8,4 m²
Kostenlose Lieferung
6.499,00 €Optionen auswählenVoraussichtlicher Lieferzeitraum 25. Juni 2026 - 09. Juli 2026
A-Haus Aavo 692×493 cm
21.490,00 €
Preis inkl. MwSt.

















