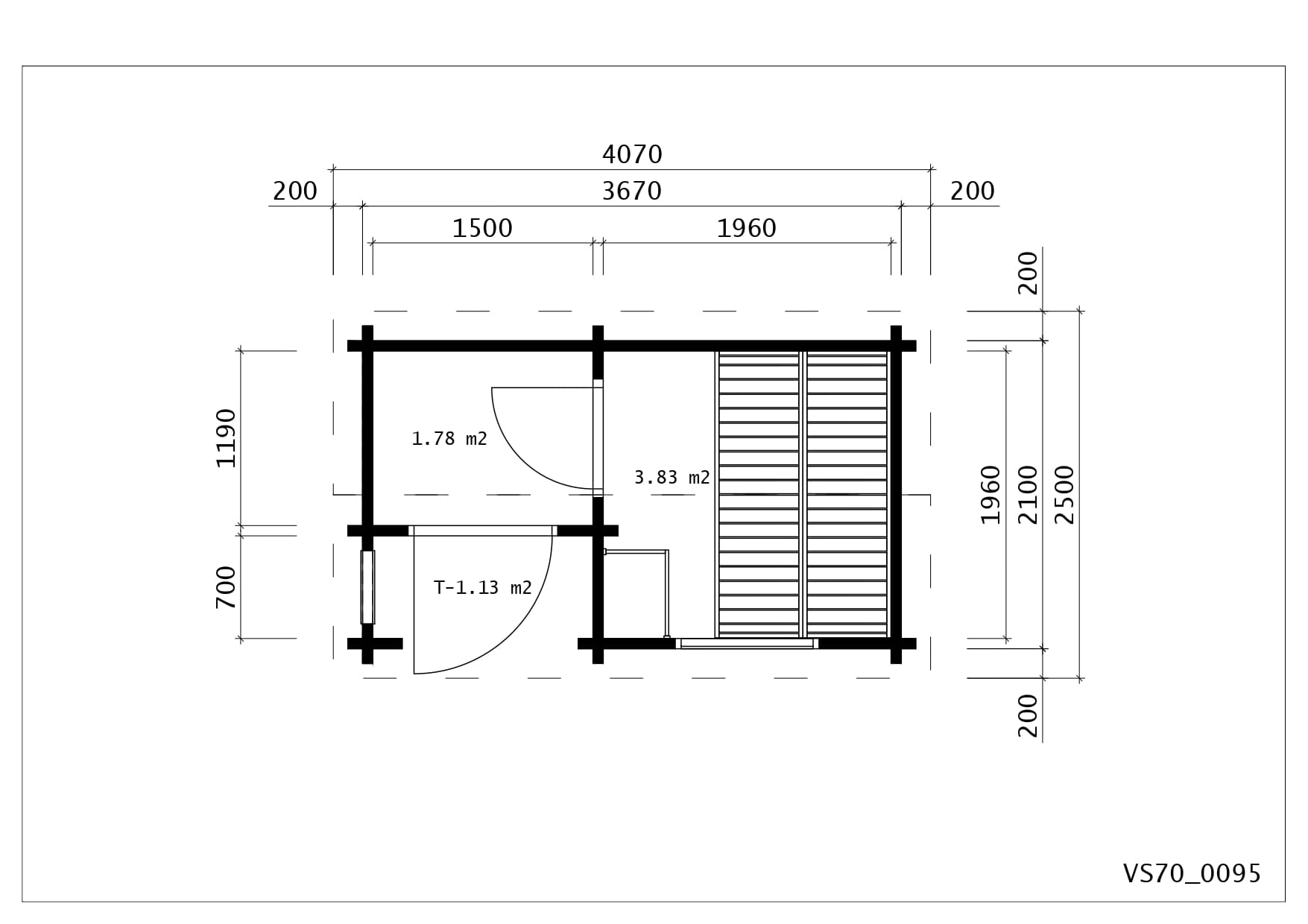
Die Gartensauna Alberta beweist, dass anspruchsvolle Saunakultur auch auf begrenztem Raum verwirklicht werden kann. Mit den kompakten Außenmaßen von 367 x 210 cm und einer Grundfläche von nur 5,61 m² fügt sich dieses durchdachte Meisterwerk selbst in kleinere Gärten harmonisch ein, ohne Abstriche bei Qualität und Wohlfühlatmosphäre machen zu müssen. Die Gesamthöhe von 2,7 Metern bei einer Wandhöhe von 2,23 Metern schafft ein angenehm offenes Raumgefühl, das die kompakten Dimensionen optisch vergrößert und für eine optimale Luftzirkulation sorgt.
Trotz der platzsparenden Abmessungen bietet die Alberta eine clevere Aufteilung in zwei separate Räume. Diese intelligente Raumlösung ermöglicht es, den Hauptraum als klassische Sauna zu nutzen, während der zweite Raum als gemütliche Umkleide oder Ruhezone dient. So wird selbst auf kleiner Fläche ein vollwertiges Saunaerlebnis mit allen notwendigen Funktionen realisiert.
Charmante Terrasse als Eingangsbereich und Ruhezone
Ein besonderes Highlight der Gartensauna Alberta ist die einladende Terrasse mit einer Tiefe von 970 mm. Dieser durchdachte Eingangsbereich schafft einen sanften Übergang zwischen Garten und Saunawelt und erweitert die Nutzungsmöglichkeiten des kompakten Bauwerks erheblich. Hier können Sie nach dem Saunagang an der frischen Luft verweilen, abkühlen und den Blick in Ihren Garten schweifen lassen – ein kleiner Luxus, der die Alberta von einfachen Saunamodellen abhebt.
Die Terrasse lädt dazu ein, Saunabesuche in ruhigen Momenten zu genießen, draußen zu sitzen und die wohltuende Nachwärme auf der Haut bei einem erfrischenden Getränk ausklingen zu lassen. Ausgestattet mit einer kleinen Sitzgelegenheit wird dieser Bereich schnell zu Ihrem persönlichen Lieblingsplatz für entspannte Auszeiten im Grünen.
Meisterhafte Konstruktion mit winddichter Chalet-Verbindung
Das Herzstück der Gartensauna Alberta bildet die präzisionsgefertigte Blockbohlenkonstruktion mit dem innovativen Chalet-Verbindungssystem. Diese fortschrittliche Verbindungstechnik ermöglicht es den massiven Holzbohlen, nahtlos ineinanderzugreifen und eine außergewöhnlich dichte, windbeständige Abdichtung zu bilden. Die Wandstärke von 70 mm garantiert nicht nur eine hervorragende Wärmedämmung und Energieeffizienz, sondern verleiht der gesamten Struktur eine solide, langlebige Stabilität, die selbst extremen Witterungsbedingungen trotzt. Der Fußboden ist aus 28 mm starken Dielen gefertigt.
Die verwendeten Bohlen sind mit einem Doppelzahn- und Nut-System ausgestattet, das für eine besonders starke und sichere Verbindung zwischen den einzelnen Elementen sorgt. Diese hochentwickelte Konstruktionsweise verbessert die Windbeständigkeit und Gesamtstabilität erheblich – ein entscheidender Vorteil für den ganzjährigen Einsatz und eine Investition, die über Jahrzehnte Freude bereitet.
Durchdachte Lichtkonzeption mit Premium-Verglasung
Die Gartensauna Alberta ist mit erstklassigen Fenstern und Türen der Qualitätsklasse Q4 ausgestattet – die höchste Stufe für Holzbauelemente, die für exzellente Wärmedämmung, Langlebigkeit und Wertigkeit steht. Die Verglasung wurde mit Bedacht gewählt, um auch auf kompaktem Raum eine lichtdurchflutete, einladende Atmosphäre zu schaffen.
Ein großzügiges Fenster im Format 800 x 880 mm mit gehärteter Doppelverglasung lässt natürliches Licht in den Innenraum strömen und schafft eine Verbindung zur umgebenden Gartenlandschaft. Ein zusätzliches Fenster mit den Maßen 915 x 510 mm und ebenfalls gehärteter Doppelverglasung sorgt für weitere Helligkeit und kann je nach Raumnutzung flexibel positioniert werden.
Die beiden Türen wurden mit gleicher Sorgfalt gewählt: Eine Tür im Format 840 x 1955 mm mit gehärteter Doppelverglasung ermöglicht einen repräsentativen Zugang und fungiert gleichzeitig als weiteres lichtspendendes Element. Eine zusätzliche Tür mit den Maßen 690 x 1936 mm und gehärtetem Glas rundet das durchdachte Gesamtkonzept ab und erlaubt flexible Nutzungsmöglichkeiten der beiden Räume.
Robuste Dachkonstruktion für dauerhaften Schutz
Die Dachkonstruktion der Gartensauna Alberta wurde mit derselben Präzision geplant wie das gesamte Bauwerk. 18 mm starke Dachbretter bilden eine stabile und witterungsbeständige Dachfläche von 11,6 m². Die Dachneigung von 25,7 Grad gewährleistet einen optimalen Wasserabfluss bei Regen und Schnee, während die gleichmäßigen Traufmaße von 200 mm rundum für einen harmonischen, ausgewogenen Gesamteindruck sorgen. Alle erforderlichen Verbindungselemente sind selbstverständlich im Lieferumfang enthalten.
Nordische Holzqualität aus nachhaltiger Forstwirtschaft
Die Gartensauna Alberta aus hochwertigem nordischem Holz gefertigt, das aus nachhaltig bewirtschafteten Wäldern stammt. Die FSC®-Zertifizierung des Herstellers unterstreicht das tief verwurzelte Engagement für umweltbewusste Produktion und verantwortungsvolle Forstwirtschaft. Jedes Holzstück durchläuft eine präzise Fertigung mit modernster Technologie in den hochmodernen Produktionsstätten auf der estnischen Insel Saaremaa.
Das nordische Holz ist bekannt für seine außergewöhnliche Dichte, Festigkeit und Widerstandsfähigkeit – ideale Eigenschaften für den Bau einer Sauna, die über Generationen Bestand haben soll. Die langsame Wachstumsgeschwindigkeit in den nördlichen Breitengraden sorgt für besonders enge Jahresringe und damit für eine überdurchschnittliche Holzqualität, die sich in Langlebigkeit und Stabilität auszahlt.
Traditionelle Handwerkskunst trifft Hightech-Fertigung
Die einzigartige Kombination aus traditionellem Handwerk und modernster Fertigungstechnik garantiert eine gleichbleibend hohe Qualität und Passgenauigkeit, die die Montage erleichtert und für eine lange Lebensdauer sorgt. In den hochmodernen Produktionsanlagen auf Saaremaa wird jedes Bauteil mit Präzision gefertigt, bevor es sicher verpackt den Weg zu Ihnen antritt.
Ob Sie als erfahrener Heimwerker selbst Hand anlegen oder professionelle Hilfe in Anspruch nehmen – die durchdachte Konstruktion macht den Aufbau überschaubar und erfolgreich. Die präzise vorgefertigten Elemente fügen sich dank des innovativen Chalet-Verbindungssystems passgenau zusammen und ermöglichen eine zügige Montage.
Ihr kompaktes Refugium für kleine Gärten
Die Gartensauna Alberta ist der lebendige Beweis, dass auch auf begrenztem Raum ein vollwertiges Saunaerlebnis verwirklicht werden kann. Sie ist weit mehr als nur ein Ort zum Schwitzen – sie ist ein Rückzugsort, an dem Sie dem Alltag entfliehen, zur Ruhe kommen und neue Kraft schöpfen können. Die Verbindung von hochwertigen Materialien, durchdachter Konstruktion und ästhetischem Design schafft einen Raum, der Körper und Geist gleichermaßen anspricht.
Ob an kalten Wintertagen, wenn der Dampf der Sauna in der klaren Luft aufsteigt und Sie geschützt auf der kleinen Terrasse abkühlen, oder an lauen Sommerabenden, wenn das Licht durch die großzügigen Fenster fällt – die Gartensauna Alberta wird schnell zum beliebtesten Ort in Ihrem Garten. Erleben Sie, wie die wohltuende Wärme Verspannungen löst, die Durchblutung fördert und für tiefe Entspannung sorgt.
Entscheiden Sie sich für die Gartensauna Alberta und holen Sie sich ein Stück nordische Lebensart in Ihren Garten – für mehr Lebensqualität, Entspannung und genussvolle Momente das ganze Jahr über, und das auf überraschend kompaktem Raum.
Das könnte dir gefallen
-

Gartensauna Cary
8.999,00 €Optionen auswählenEstimated delivery dates: Apr. 5, 2026 - Apr. 10, 2026 -

Saunahaus OLIS 400
8.999,00 €In den WarenkorbEstimated delivery dates: Apr. 5, 2026 - Apr. 10, 2026 -

Saunahaus LYSSA 300
7.999,00 €In den WarenkorbEstimated delivery dates: Apr. 5, 2026 - Apr. 10, 2026
Lieferzeit
Keine Angabe










